Return to main list


Before


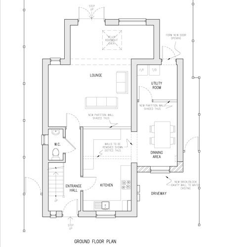
After

Design Project

My client required a larger kitchen and dining area, so an existing garage conversion was proposed.

This was extended to the front, to provide a more aesthetically pleasing design.