Return to main list


Before


After

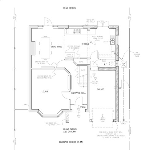
This project, for a two storey side extension, with internal alterations, provided my clients with a large open plan, family kitchen / dining area, coupled with an additional bedroom with dressing room and en-suite.