Return to main list


Before


After

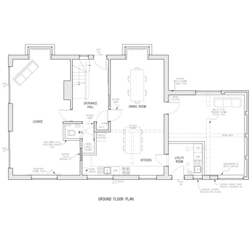
Design Project

This project proposal was to convert the existing garage, to allow for internal alterations, to provide a large kitchen / dining area, a separate utility room, and a large family room.

There were also alterations to the garage loft space, to provide a double bedroom with an en-suite bathroom.

A new, detached garage was also proposed.